








Located in the newly developing area in Ho Chi Minh City, this head office and showroom for an electrical corporation aspires to express its own identity as a new icon within the region.
The building is formed by translucent glass block stacking alternately, and creating terraces in between to accommodate trees. This facade also functions as a filter which diffuses intense direct sunlight in the daytime. In the contrary, at night, it turns into a beacon lighting box illuminating the neighborhood. Taking into account the high density surrounding in the near future, the glass blocks are meant to blur and calm the view to the outside, while the trees provide green ambience throughout the building.
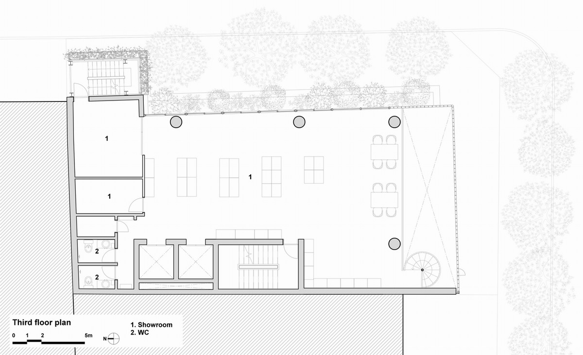
The 10 stories volume accommodates showroom and community area in lower 4 stories, and office in the upper 6 stories. The entrance with big opening reveals activities inside, attracting people passing through. Right after the entrance is a multifunctional zone where various events and exhibitions could be held. Staircases within the vertical void, which penetrates through the floors, connect several kinds of showroom and communal area and enhance interaction between them.
SEE MORE votrongnghia
|
|