


The city of Shenzhen is a sophisticated community of architectural trendsetters where new development has embraced signature, contemporary architecture. The Dachong MixC World project is no exception. Dachong MixC World brings together eclectic retail and entertainment environments, such as a MixC shopping center, with diverse offerings and activities; an exquisite high street featuring the latest luxury brands; a hip, art-infused retail street’ and a historically conscious green plaza. The project is characteristically reflective of Shenzhen — leveraging the synergy between art and technology to shape a modern, yet intimate and comfortable, work, live and play destination.
深圳是一个引领建筑潮流的成熟社区,新开发项目融合了标志性的当代建筑风格。大冲万象天地项目也不例外。大冲万象天地融合了兼收并蓄的零售和娱乐环境,例如提供丰富多彩商品和活动的万象城购物中心;汇集最新奢侈品牌的精致商业街;充满艺术气息的时尚零售街以及富有历史韵味的绿植广场。该项目充分体现了深圳的特色——利用艺术与科技的协同作用,打造一个现代而又私密舒适的工作、生活和娱乐目的地。




Foster+ Partners has also designed seven office towers within the masterplan that are a striking new addition to the city’s skyline. Moving away from the monolithic building type, the stepped structures soften the edges and their elegant proportions create a graceful marker for the surrounding area. Their profiles also create a variety of terrace spaces with uninterrupted panoramic views of Shenzhen, while animating the city skyline.
Foster+ Partners 建筑事务所还在总体规划中设计了七座办公塔楼,为城市天际线增添了令人瞩目的新亮点。其阶梯式结构摒弃了整体式的建筑风格,柔化了建筑的棱角,优雅的比例为周边区域增添了优雅的韵味。塔楼的轮廓还创造了丰富的露台空间,让深圳的全景视野一览无余,同时为城市天际线增添了活力。
To accommodate greater flexibility, the structure was placed externally to allow column free floorplates. These columns were then used to self-shade the towers, creating larger windows and optimising views out to create a more pleasant working environment. The external structure is clad in shimmering white and silver profiled panels, outlining the towers and articulating the masterplan’s unique ‘ribbons’ expression.
为了实现更大的灵活性,建筑结构采用外置式布局,从而实现无柱楼板。这些柱子不仅为塔楼提供遮阳,还能扩大采光,优化视野,营造更舒适的工作环境。外部结构覆以闪亮的白色和银色压型面板,勾勒出塔楼的轮廓,并巧妙地诠释了总体规划独特的“丝带”造型。






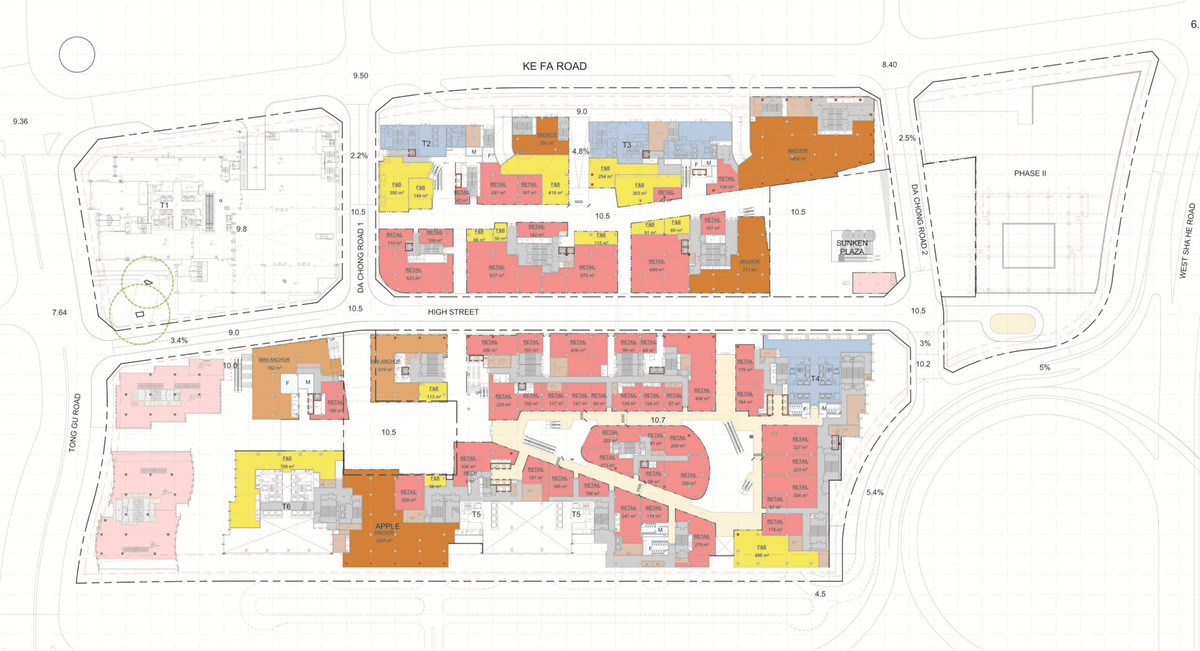
The innovative "block and mall" commercial space of Dachong MixC World differentiates it from the traditional closed commercial model. The dynamic program includes distinguishable design zones, a high street with a flagship plaza composed of individual flagship stores and independent trend-setting stores, a 24-hour nightlife food street with brand-name restaurants, shopping malls, and public leisure spaces such as Water Plaza, Art and Culture Plaza, and Time Plaza. Through the innovative design of architectural form and investment positioning, the project presents a multi-layered sense of space.
大冲万象天地创新的“街区+商场”商业空间,使其区别于传统的封闭式商业模式。其充满活力的功能包括:特色鲜明的设计区域、汇聚了独立旗舰店和潮流品牌店铺的旗舰广场商业街、汇聚品牌餐厅、购物中心的24小时夜生活美食街,以及水广场、艺术文化广场和时代广场等公共休闲空间。通过创新的建筑形态和投资定位,该项目呈现出多层次的空间感。
As a dense, mixed-use retail and commercial area, the Dachong retail precinct will play an important role in the social life of the surrounding community. In the design process, the project fully considers the use of surrounding subway stations to facilitate pedestrians, and it actively encourages the use of public transportation systems and carbon-free travel modes, such as bicycles, etc. Dachong MixC World also creates a natural, dynamic link that reflects the city’s history and culture through the preservation of the memory of the historical sites, the temples of the ancient kings, the Zheng temples of the ancestral halls, and the beloved banyan trees.
大冲商业区作为一个密集的混合用途零售商业区,将在周边社区的社交生活中扮演重要角色。项目在设计过程中充分考虑了周边地铁站的便利性,并积极鼓励使用公共交通系统和自行车等低碳出行方式。大冲万象天地还通过保留历史遗迹、古代王庙、郑家祠堂以及备受喜爱的榕树等建筑元素,营造出自然、活力的联系,展现城市的历史文化。







Client:China Resources Land
SEE MORE (来自) CallisonRTKL, Foster+ Partners
|
|